Arresto umidità di risalita in una villetta a Cossombrato (AT)

    LUOGO:  Cossombrato (AT) 
    ANNO: 2021

    DURATA INTERVENTO: 2 giorni lavorativi

    ESTENSIONE: 36 metri lineari murature in mattone pieno variabile da 25 a 60 cm

    IL PROBLEMA

    Presenza di umidità di risalita capillare

    LA SOLUZIONE

    Interruzione dell'umidità di risalita attraverso una barriera chimica nella muratura

    In una villetta residenziale situata a Cossombrato, in provincia di Asti, nonostante la ristrutturazione effettuata nel 2016, erano ancora evidenti fenomeni di umidità di risalita capillare sulle murature del piano terra e su una parete del primo piano. In particolare, il lato a monte dell’edificio, completamente contro terra, favoriva il costante apporto di umidità dal suolo, con conseguenti distacchi e degradi degli intonaci.


    Quindi come risolvere il problema dell'umidità di risalita? Per risolvere in modo mirato, è stato eseguito un intervento Uretek di barriera chimica orizzontale, progettato in funzione delle caratteristiche costruttive e degli spessori variabili delle murature.

    Immagine3

     

    Immagine1

     

    IL PROBLEMA

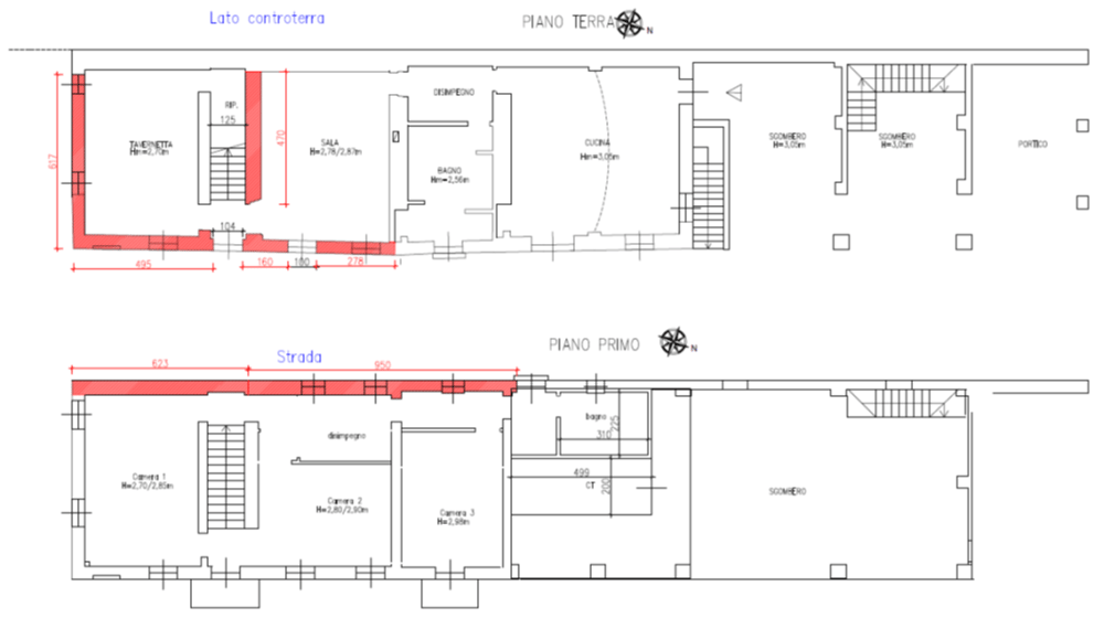
    La struttura è un edificio residenziale composto da due livelli fuori terra e da una zona cantinata, ristrutturato nel 2016.
    Il piano terra, sul lato a monte, risulta completamente contro terra, mentre i restanti tre lati sono liberi.

    Le murature interessate dall’intervento sono quattro:

    • tre al piano terra (due perimetrali e una interna),
    • una al primo piano (parete perimetrale in corrispondenza del muro interrato sottostante).

    Gli spessori della muratura variano da 25 a 60 cm, con murature prevalentemente in mattoni pieni e una porzione in mattoni forati sotto una finestra.

    Il contatto diretto con il terreno favoriva la comparsa di umidità di risalita, con conseguenti degradi visibili su intonaci e finiture.

    Immagine5

     

    LA SOLUZIONE

    Per risolvere il problema è stato eseguito un intervento di barriera chimica orizzontale articolato in due fasi:

    1. Preparazione delle superfici
      • Rimozione dell’intonaco ammalorato, sia all’interno sia all’esterno.
      • Pulizia e lavaggio accurato delle murature per eliminare polvere e sali residui.
    2. Realizzazione della barriera chimica
      • Esecuzione di iniezioni di emulsione cremosa a base di silano monomero nelle murature interessate.
      • Creazione di una barriera idrofobizzante orizzontale, capace di interrompere o ridurre la risalita dell’umidità senza compromettere la traspirabilità del supporto.
    Immagine6

     

    Lo schema dell'intervento 

    Immagine7

     

    I risultati dell'intervento

    L’intervento con la barriera chimica Uretek ha consentito di interrompere il fenomeno dell’umidità di risalita nella muratura, stabilizzando le condizioni murarie e creando le basi per un intervento di ripristino definitivo.

    Le murature sono ora predisposte a ricevere nuovi intonaci deumidificanti e finiture durature, migliorando il comfort abitativo e preservando il valore della struttura nel tempo.

    Perchè è stata scelta la soluzione Uretek

    • Velocità: un'attenta pianificazione e programmazione dei tempi di esecuzione ha permesso di completare il lavoro in tempi brevi
    • Prezzi competitivi
    • Intervento poco invasivo: l'intervento proposto da Uretek non ha richiesto alcuno scavo